Exklusive 3- Zimmerwohnung im Neubau |Balkon| Aufzug | Tageslichtbad mit Dusche | Stellplatz
Objektart
Adresse
Objektdaten
Informationen
Ausstattung
Details
Exklusive 3- Zimmerwohnung im Neubau |Balkon| Aufzug | Tageslichtbad mit Dusche | Stellplatz
Mit diesem Inserat präsentieren wir Ihnen eine hochwertige 3-Zimmerwohnung im ersten Obergeschoss in einer modernen Neubauimmobilie im gefragten Magdeburger Stadtteil Alte Neustadt. Das Gebäude zählt zu den besonderen Neubauprojekten der Landeshauptstadt, da es sich um ein Mehrfamilienhaus in moderner Holzbauweise handelt, bei dem nachhaltiges Bauen, zeitgemäße Architektur und hoher Wohnkomfort miteinander kombiniert werden. Insgesamt entstehen hier zwölf hochwertige Wohneinheiten, die ein zukunftsorientiertes Wohnen ermöglichen.
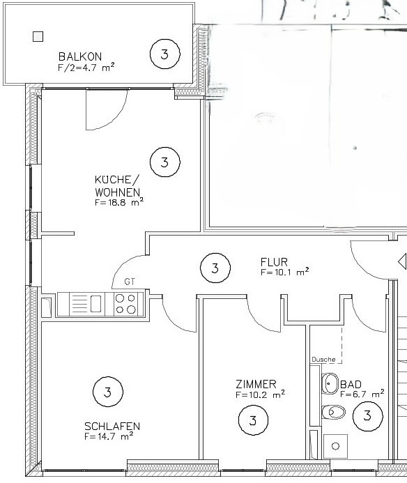
Die angebotene 3-Zimmerwohnung im ersten Obergeschoss überzeugt durch eine durchdachte, moderne Raumaufteilung sowie eine helle und angenehme Wohnatmosphäre. Der großzügige Wohnbereich bildet das Herzstück der Wohnung. Der Balkon ist direkt vom Wohn- und Küchenbereich aus begehbar und erweitert den Wohnraum ins Freie.
Die beiden weiteren Zimmer sind jeweils gut geschnitten und flexibel nutzbar, beispielsweise als Schlaf-, Arbeits- oder Gästezimmer.
Zudem verfügen das Büro sowie das Schlafzimmer über Rollläden.
Das Tageslichtbad ist großzügig dimensioniert und überzeugt mit einer modernen Gestaltung sowie großformatigen Fliesen in einem Grauton und einer Walk-in-Dusche. Die übrigen Wohnräume sind mit einem hochwertigen Vinylboden in Holzoptik ausgestattet.
Ein separater Abstellraum im Erdgeschoss steht als praktischer Kellerersatz zur Verfügung.
Ein Personenaufzug bringt Sie komfortabel bis zur Wohnebene. Ein Pkw-Stellplatz ist der Wohneinheit zugeordnet und rundet dieses attraktive Angebot ab.
Auch energetisch überzeugt die Immobilie: Es handelt sich um einen Neubau aus dem Jahr 2024 mit einem Endenergiebedarf von lediglich 12,7 kWh/(m²·a), was der Energieeffizienzklasse A+ entspricht - ein klarer Vorteil im Hinblick auf Nachhaltigkeit und Nebenkosten.
Diese 3- Zimmerwohnung wird Ihnen folgende Ausstattungshighlights bieten:
-KfW-40-QNG-Standard - besonders energieeffizient und nachhaltig zertifiziert
- Balkon
- Fußbodenheizung
- Tageslichtbadezimmer inkl. Walk- In- Dusche
- Zwei Schlafzimmer
- Rollläden
- Stellplatz für Ihren Pkw
- Personenaufzug
Es ist eine Staffelmiete vorgesehen.
Konnten wir mit diesem Inserat Ihr Interesse wecken? Dann kontaktieren Sie uns noch heute unter der 0170 58 08 292.
Weitere tolle Immobilienangebote finden Sie unter: www.boettge-born.de
Die Wohneinheit befindet sich im beliebten Magdeburger Stadtteil Alte Neustadt, einer der gefragtesten Wohnlagen nördlich der Elbe. Die Kombination aus urbaner Nähe, gewachsener Infrastruktur und kurzen Wegen in die Innenstadt macht diesen Standort besonders attraktiv für Paare, Familien und Berufstätige.
Das Magdeburger Stadtzentrum sowie die Elbpromenade sind in wenigen Minuten erreichbar. Einkaufsmöglichkeiten des täglichen Bedarfs, Bäckereien, Cafés, Restaurants, Ärzte und Apotheken befinden sich in fußläufiger Umgebung. Auch Kindertagesstätten, Schulen und weitere soziale Einrichtungen sind schnell erreichbar.
Die Anbindung an den öffentlichen Nahverkehr ist hervorragend. Straßenbahn- und Bushaltestellen befinden sich in unmittelbarer Nähe und ermöglichen eine schnelle Verbindung in alle Stadtteile Magdeburgs sowie zum Hauptbahnhof. Die gute Verkehrsanbindung wird durch die Nähe zu wichtigen Ausfallstraßen ergänzt.
Darüber hinaus bietet die Umgebung zahlreiche Möglichkeiten zur Freizeit- und Erholungsgestaltung. Grünflächen, Parks sowie die nahegelegene Elbe laden zu Spaziergängen, sportlichen Aktivitäten und entspannten Stunden im Freien ein.
Insgesamt bietet die Lage eine gelungene Verbindung aus ruhigem Wohnen, urbaner Lebensqualität und sehr guter Erreichbarkeit - ein Standort mit hoher Wohn- und Zukunftsqualität.
Bitte beachten Sie: Einige der in diesem Exposé gezeigten Bilder wurden mithilfe von KI erstellt. Sie dienen der Veranschaulichung und ersetzen keine verbindlichen Planungs- oder Realaufnahmen.
Ansprechpartner
Telefax: 0049391280335029
Mobil: 00491705808292
sindermann@boettge-born.de
Energieausweis (Bedarfsausweis)
12,70 kWh / (m²*a) Endenergiebedarf
12,70 kWh / (m²*a) Endenergiebedarf
12,70 kWh / (m²*a) Endenergiebedarf
Weitere Informationen
| Wesentlicher Energieträger | Luft-/Wasser-Wärmepumpe |
| Energieausweis gültig bis | 2035-08-26 |
| Energieausweis Jahrgang | ab dem 1.5.2014 |
| Energieausweis Baujahr | 2024 |
| Energieausweis Gebäudeart | Wohngebäude |
| Heizung | Fußbodenheizung |
| Befeuerung | Luft-/Wasser-Wärmepumpe |
Ich bin damit einverstanden, dass mir Karten von Google angezeigt werden. Es gelten die Datenschutzbedingungen von Google (https://policies.google.com/privacy).
Ich bin einverstanden