Exklusive Dachterrassenwohnung im Denkmal - 3 Zimmer, HWR, Fußbodenheizung & Stellplatz inklusive
Objektart
Adresse
Objektdaten
Informationen
Ausstattung
Details
+++Exklusive Dachterrassenwohnung im Denkmal - 3 Zimmer, HWR, Fußbodenheizung & Stellplatz inklusive+++
Mit diesem Inserat präsentieren wir Ihnen eine außergewöhnliche Wohneinheit in der stilvoll sanierten Denkmalimmobilie der ehemaligen Diamant Brauerei in Magdeburg. In dem geschichtsträchtigen Gebäude entstehen insgesamt 26 hochwertige Wohnungen, die den einzigartigen Charakter des historischen Bestands mit modernem Wohnkomfort harmonisch verbinden.
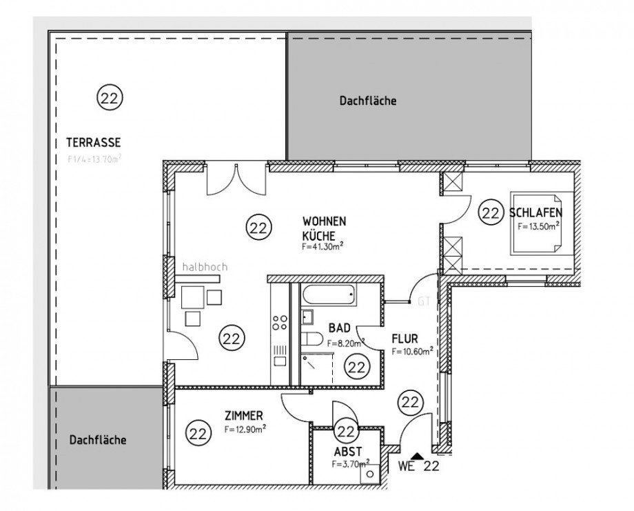
Die angebotene Wohnung überzeugt durch ein offenes, großzügiges Raumkonzept und eine durchdachte Aufteilung. Der lichtdurchflutete Wohn- und Küchenbereich bildet das Herzstück der Einheit und bietet direkten Zugang zur großzügigen Dachterrasse - ideal für entspannte Stunden im Freien.
Das innenliegende Badezimmer ist hochwertig ausgestattet und verfügt sowohl über eine Walk- In- Dusche als auch über eine Badewanne. Großformatige Fliesen in einem modernen Farbton unterstreichen das stilvolle Ambiente.
Ergänzt wird das Raumangebot durch einen praktischen Hauswirtschaftsraum, der zusätzlichen Stauraum bietet.
In allen Wohn- und Schlafbereichen ist hochwertiger Parkettboden verlegt, der für eine warme und elegante Wohnatmosphäre sorgt.
Ein weiterer Vorteil: Zur Wohnung gehört ein Pkw-Stellplatz, der komfortables und stressfreies Parken ermöglicht.
Die Kombination aus historischem Ambiente, moderner Ausstattung und einer außergewöhnlichen Raumgestaltung macht diese Wohnung zu einem idealen Zuhause für anspruchsvolle Mieter, die urbanes Wohnen mit besonderem Charakter suchen.
Haben wir Ihr Interesse geweckt? Dann freuen wir uns auf Ihre Kontaktaufnahme unter 0170 5808292.
Weitere Immobilienangebote finden Sie unter: www.boettge-born.de
Diese sanierte 3- Zimmerwohnung wird Ihnen folgende Ausstattungshighlights bieten:
- Dachterrasse
- Offener Wohn- und Küchenbereich
- Fußbodenheizung
- Badezimmer inkl. Walk- In- Dusche und Badewanne
- Stellplatz für Ihren Pkw
- Hauswirtschaftsraum
- Personenaufzug
Es ist eine Staffelmiete vorgesehen.
Die angebotene Wohneinheit befindet sich in der Alten Diamant Brauerei 4 im beliebten Magdeburger Stadtteil Alte Neustadt - einer Lage, die urbanes Leben und angenehme Wohnqualität ideal miteinander verbindet.
In unmittelbarer Umgebung finden sich zahlreiche Einkaufsmöglichkeiten für den täglichen Bedarf, darunter Supermärkte, Bäckereien sowie diverse Einzelhandelsgeschäfte. Auch medizinische Einrichtungen wie Arztpraxen und Apotheken sind schnell erreichbar und sorgen für eine hervorragende Infrastruktur.
Für Erholung im Grünen bietet der nahegelegene Nordpark eine attraktive Möglichkeit zum Entspannen, Spazieren oder für sportliche Aktivitäten.
Die Anbindung an die Magdeburger Innenstadt ist ausgezeichnet: Über die nahegelegenen Verkehrsachsen wie die Sandtorstraße und das Schleinufer gelangen Sie schnell und unkompliziert ins Stadtzentrum.
Auch die Otto-von-Guericke-Universität Magdeburg ist bequem erreichbar und unterstreicht die Attraktivität der Lage - sowohl für Studierende als auch für Mitarbeitende der Universität oder alle, die eine zentrale und dennoch ruhige Wohnlage schätzen.
Das Objekt steht unter Denkmalschutz, weshalb nach §16 EnEV kein Energieausweis vorzulegen ist.
Ansprechpartner
Telefax: 0049391280335029
Mobil: 00491705808292
sindermann@boettge-born.de
Ich bin damit einverstanden, dass mir Karten von Google angezeigt werden. Es gelten die Datenschutzbedingungen von Google (https://policies.google.com/privacy).
Ich bin einverstanden