Hochwertige 3,5- Zimmerwohnung in der Alten Neustadt inkl. modernem Tageslichtbad mit Wa&Du + Balkon
Objektart
Adresse
Objektdaten
Informationen
Ausstattung
Details
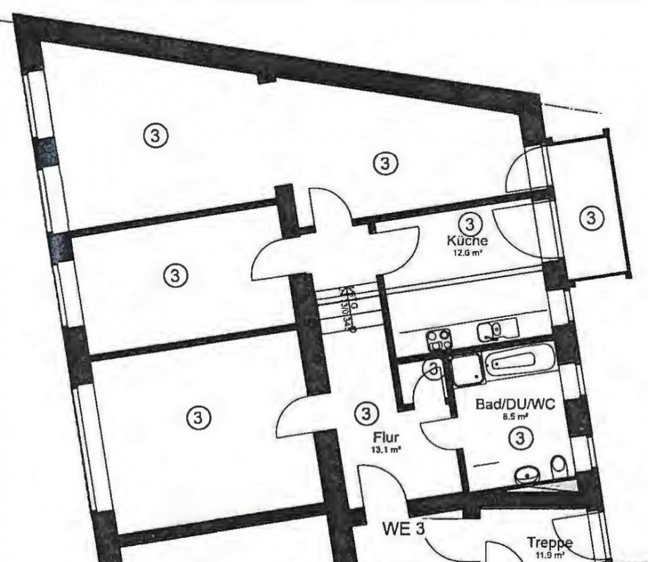
Mit diesem Inserat stellen wir Ihnen eine attraktive 3,5-Zimmerwohnung in der Gröperstr. 2 vor. Das Mehrfamilienhaus wurde 2023 komplett kernsaniert.
Beim Betreten der Wohnung empfängt Sie ein großzügiger Flurbereich, von dem aus alle Räume bequem erreichbar sind. Der Flur ist - ebenso wie die Küche und das Badezimmer - mit einer modernen indirekten Lichtleiste entlang der Decke sowie eleganten Deckenspots ausgestattet, die ein stilvolles und harmonisches Ambiente schaffen.
Der weitläufige Wohn- und Essbereich bietet viel Platz für individuelle Einrichtungsideen und überzeugt durch warme Bodenbeläge, große Fensterflächen und eine angenehme Raumwirkung. Die angrenzende Küche ist als separater Raum gestaltet und bietet ideale Voraussetzungen für eine individuelle Küchengestaltung.
Besonders komfortabel: Der Balkon ist sowohl vom Wohn- und Essbereich als auch von der Küche aus begehbar und erweitert die Wohnung um einen charmanten Außenbereich mit Blick in den ruhigen Innenhof.
Das Schlafzimmer sowie ein weiteres großzügiges Zimmer - ideal als Büro, Gäste- oder Hobbyraum - bieten ruhige Rückzugsmöglichkeiten und vielfältige Nutzungspotenziale.
Ein weiteres Highlight stellt das modern ausgestattete Tageslichtbad dar. Mit Badewanne, separater Dusche, Waschmaschinenanschluss und einem im Spiegel integrierten TV lädt es zu entspannten Wohlfühlmomenten ein. Auch hier sorgt die Kombination aus Spots und indirekter Beleuchtung für ein hochwertiges, zeitgemäßes Ambiente.
Abgerundet wird das Angebot durch ein praktisches Kellerabteil, das zusätzlichen Stauraum bietet.
Überzeugen Sie sich selbst von diesem hervorragenden Wohnungsangebot und vereinbaren Sie noch heute einen Besichtigungstermin unter 0170 58 08 292.
Weitere attraktive Angebote finden Sie unter: www.boettge-born.de
Diese 3,5- Zimmerwohnung bietet Ihnen folgende Ausstattungsmerkmale:
- Tageslichtbadezimmer mit Badewanne und Dusche sowie einem Waschmaschinenanschluss
- Integrierter TV im Badspiegel
- Offener Wohn- und Essbereich
- Separater Küchenbereich
- Laminat & Fliesen
- Balkon
- Indirekte Lichtleiste sowie Deckenspots im Flur, der Küche und im Badezimmer
- Kellerabteil
Die Wohnung befindet sich in der Gröperstraße 2 im beliebten Stadtteil Alte Neustadt - einer der gefragtesten Wohnlagen Magdeburgs. Die Umgebung überzeugt durch eine hervorragende Infrastruktur: Supermärkte, Cafés, Ärzte sowie zahlreiche Geschäfte des täglichen Bedarfs sind bequem zu Fuß erreichbar und machen den Alltag besonders komfortabel.
Für Erholung und Freizeit bietet der nahegelegene Nordpark ideale Voraussetzungen zum Spazieren, Joggen oder Entspannen im Grünen. Gleichzeitig profitieren Sie von einer sehr guten Anbindung an die Innenstadt: Über die Sandtorstraße und das Schleinufer erreichen Sie das Stadtzentrum in wenigen Minuten - sowohl mit dem Auto als auch mit öffentlichen Verkehrsmitteln.
Ein weiterer großer Vorteil ist die Nähe zur Otto-von-Guericke-Universität, die in weniger als zehn Minuten fußläufig erreichbar ist. Damit eignet sich die Lage gleichermaßen für Studierende, Berufstätige und Familien, die urbanes Wohnen mit kurzen Wegen schätzen.
Das Objekt steht unter Denkmalschutz, weshalb nach §16 EnEV kein Energieausweis vorzulegen ist.
Ansprechpartner
Telefax: 0049391280335029
Mobil: 00491705808292
sindermann@boettge-born.de
Ich bin damit einverstanden, dass mir Karten von Google angezeigt werden. Es gelten die Datenschutzbedingungen von Google (https://policies.google.com/privacy).
Ich bin einverstanden