Stilvolle 4-Zimmer- mit 2 Dachterrassen, Parkett, Tageslichtbad, Wa+Du und Stellplatz!
Objektart
Adresse
Objektdaten
Informationen
Ausstattung
Details
Stilvolle 4-Zimmer- mit 2 Dachterrassen, Parkett, Tageslichtbad, Wa+Du und Stellplatz!
Mit diesem Inserat präsentieren wir Ihnen eine hochwertige 4-Zimmer-Wohnung in der stilvoll sanierten Denkmalimmobilie der ehemaligen Diamant Brauerei in Magdeburg. In dem geschichtsträchtigen Gebäude entstehen insgesamt 26 Wohnungen, die den einzigartigen Charakter des historischen Bestands mit modernem Wohnkomfort harmonisch verbinden.
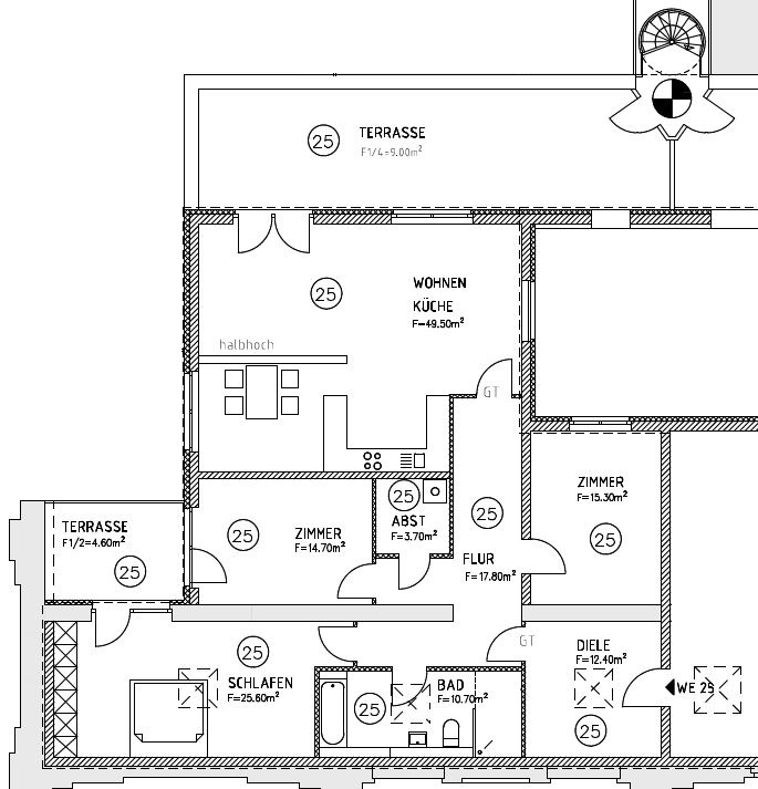
Die angebotene Wohnung überzeugt durch eine durchdachte Raumaufteilung und ein angenehmes Wohngefühl. Der helle Wohnbereich bildet das Herzstück der Einheit und bietet direkten Zugang zu der Dachterrasse - ideal für entspannte Stunden im Freien. Der separate Küchenbereich ist funktional gestaltet und schließt unmittelbar an den Wohnraum an, wodurch kurze Wege und ein offenes Wohnkonzept entstehen.
Ein geräumiger Flur sorgt für einen einladenden Eingangsbereich und bietet ausreichend Platz für Garderobe und Stauraum.
Das Tageslichtbadezimmer ist modern ausgestattet und verfügt über eine großzügige Walk-In-Dusche und eine Badewanne. Hochwertige Materialien und eine stilvolle Gestaltung unterstreichen den zeitgemäßen Wohnkomfort.
Für zusätzlichen Komfort sorgt die integrierte Smart-Home-Technologie, die ein modernes und effizientes Wohnen ermöglicht.
In den Wohnräumen wird besonderer Wert auf eine hochwertige Ausstattung gelegt, die eine angenehme und stilvolle Wohnatmosphäre schafft.
Ein weiterer Vorteil: Zur Wohnung gehört ein Pkw-Stellplatz, der komfortables und stressfreies Parken ermöglicht.
Die Kombination aus historischem Ambiente, moderner Ausstattung und funktionaler Raumaufteilung macht diese Wohnung zu einem idealen Zuhause für Mieter, die urbanes Wohnen mit besonderem Charakter schätzen.
Haben wir Ihr Interesse geweckt? Dann freuen wir uns auf Ihre Kontaktaufnahme unter 0163 7665215.
Weitere Immobilienangebote finden Sie unter: www.boettge-born.de
Diese sanierte 2- Zimmerwohnung wird Ihnen folgende Ausstattungshighlights bieten:
- 2 Dachterrassen
- Geräumiger Wohnbereich
- Parkett & großformatige Fliesen
- offene Küche
- Fußbodenheizung
- Tageslichtbad mit einer Walk-In Dusche und einer Badewanne
- Stellplatz für Ihren Pkw
- Personenaufzug
Es ist eine Staffelmiete vorgesehen.
Die angebotene Wohneinheit befindet sich in der Alten Diamant Brauerei 4 im beliebten Magdeburger Stadtteil Alte Neustadt - einer Lage, die urbanes Leben und angenehme Wohnqualität ideal miteinander verbindet.
In unmittelbarer Umgebung finden sich zahlreiche Einkaufsmöglichkeiten für den täglichen Bedarf, darunter Supermärkte, Bäckereien sowie diverse Einzelhandelsgeschäfte. Auch medizinische Einrichtungen wie Arztpraxen und Apotheken sind schnell erreichbar und sorgen für eine hervorragende Infrastruktur.
Für Erholung im Grünen bietet der nahegelegene Nordpark eine attraktive Möglichkeit zum Entspannen, Spazieren oder für sportliche Aktivitäten.
Die Anbindung an die Magdeburger Innenstadt ist ausgezeichnet: Über die nahegelegenen Verkehrsachsen wie die Sandtorstraße und das Schleinufer gelangen Sie schnell und unkompliziert ins Stadtzentrum.
Auch die Otto-von-Guericke-Universität Magdeburg ist bequem erreichbar und unterstreicht die Attraktivität der Lage - sowohl für Studierende als auch für Mitarbeitende der Universität oder alle, die eine zentrale und dennoch ruhige Wohnlage schätzen.
Sehr geehrte Interessenten,
Wir freuen uns, Ihnen exklusive Einblicke in unsere hochwertigen Wohnungen bieten zu können. Bitte beachten Sie, dass die Fotos in diesem Expose von anderen Wohnungen stammen und dazu dienen, Ihnen eine Orientierung über die verwendeten Materialien und den allgemeinen Stil zu geben.
Es ist wichtig zu betonen, dass Abweichungen zur tatsächlichen Ausstattung und Raumaufteilung der einzelnen Wohnungen auftreten können. Jede Wohnung ist einzigartig und individuell gestaltet, um den spezifischen Bedürfnissen und Ansprüchen ihrer Bewohner gerecht zu werden.
Wir laden Sie herzlich ein, sich persönlich von der Qualität und dem Charme unserer Wohnungen zu überzeugen. Gerne stehen wir Ihnen für Besichtigungen zur Verfügung und beantworten all Ihre Fragen.
Das Objekt steht unter Denkmalschutz, weshalb nach §16 EnEV kein Energieausweis vorzulegen ist.
Ansprechpartner
Telefax: 0049391280335029
Mobil: 00491637665215
c.born@boettge-born.de
Ich bin damit einverstanden, dass mir Karten von Google angezeigt werden. Es gelten die Datenschutzbedingungen von Google (https://policies.google.com/privacy).
Ich bin einverstanden